

Be a part of the
Million Dollar Miracle
The Waters Church is expanding our building to better meet the needs of our community and church family. Because if we build it, they will come! With your help, we are believing to save $1 Million dollars in donated labor and materials!
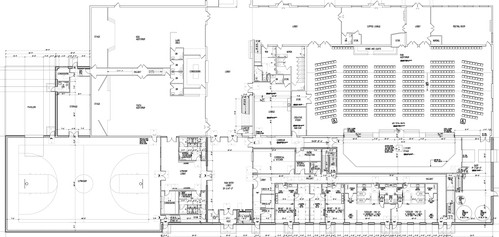
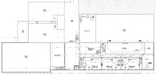
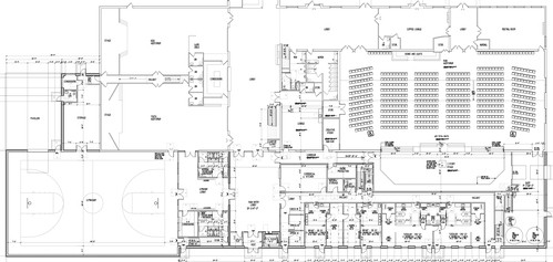
- In this $8.5 million expansion we will be adding 32,000 sq ft with the main goal to better help the community around us.
- We are increasing our seating capacity from 600 seats to 800 seats in the main auditorium.
- Additional meeting spaces will be added to help accommodate the need for our LifeGroups, community events, and general growth of the church.
- A full size gymnasium to provide space for community events.
- It will include a daycare for 104 children ages newborn- preschool. That will help meet the need of the deficit of 400 children just in Sartell that are needing childcare. The hope for the daycare is to be up and running mid 2025.
We invite you to partner with us in this exciting time of growth.
We literally cannot do this without you! Please consider how you can give of your time, talent, and treasure.


"So Moses summoned Bezalel and Oholiab and all the others who were specially gifted by the Lord and were eager to get to work. Moses gave them the materials donated by the people of Israel as sacred offerings for the completion of the sanctuary." Exodus 36:2-3
